Structural Drawing

Transform your vision into precise, professional Structural Drawings that serve as the foundation for exceptional construction projects.

Precision Meets Creativity

An Structural Drawing or architect's drawing is a technical drawing of a building (or building project) that falls within the definition of architecture. Structural Drawings are used by architects and others for a number of purposes: to develop a design idea into a coherent proposal, to communicate ideas and concepts, to convince clients of the merits of a design, to assist a building contractor to construct it based on design intent, as a record of the design and planned development, or to make a record of a building that already exists. Staffing is assigning people to duties related to the project. Directing is ensuring that you complete tasks as planned, and monitoring is ensuring that you meet the requirements and performance benchmarks set during the planning stage. If you don’t meet these requirements, you’ll devote considerable time to the controlling stage, which involves managing the budget and meeting contract requirements.

CAD Technology
BIM Integration
Code Compliance

Residential

Custom homes & renovations

Commercial

Office & retail spaces

Industrial

Manufacturing facilities

Institutional

Healthcare & education

Our Drawing Services

Comprehensive Structural Drawing solutions tailored to your project needs

Structural analysis & Design

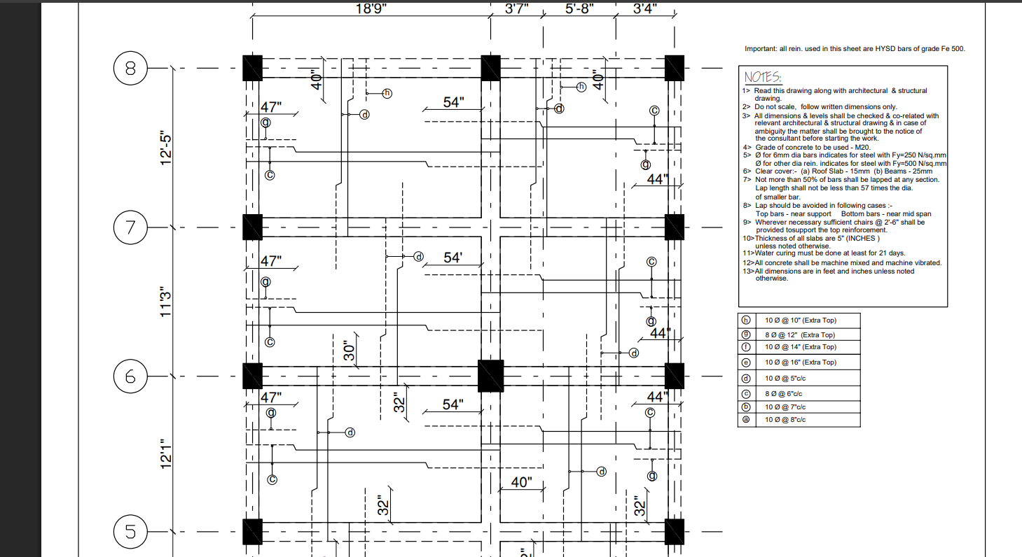
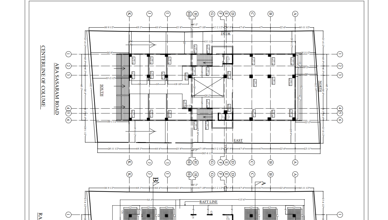
Detailed Structural Drawings of Foundation/Tie beam/plinth beam/ staircase/ lift/ floor beam/ slab/ overhead water tank

Codal provision

Detailed project report

Material optimization

Structural rehabilitation & retrofitting

Why Choose Our Drawing Services

Professional Structural Drawings that deliver precision, compliance, and exceptional value

Precision & Accuracy

Eliminate construction errors through precise dimensioning and standardized symbols.

Code Compliance

Drawings prepared in accordance with local building codes and regulations.

Cost Control

Detailed drawings enable accurate cost estimation and prevent budget overruns.

Clear Communication

Universal language that facilitates communication between all stakeholders.

Our Design Process

A collaborative approach that ensures your vision is transformed into precise Structural Drawings

1

Initial Consultation

We begin with a comprehensive consultation to understand your vision, requirements, and project goals. Our team analyzes site conditions, zoning requirements, and design preferences to establish a solid foundation for the project.

What We Discuss

  • Project scope and objectives
  • Budget and timeline
  • Design preferences
  • Site analysis
2

Concept Development

Our design team creates initial concept drawings and sketches that capture your vision. We explore different design options, spatial arrangements, and Structural Drawing styles to find the perfect solution for your project.

Design Exploration

  • Conceptual sketches
  • Space planning
  • Design alternatives
  • Client feedback
3

Detailed Design

Once the concept is approved, we develop detailed Structural Drawings including floor plans, elevations, sections, and construction details. Every element is carefully designed and documented for construction.

Technical Documentation

  • Detailed floor plans
  • Elevation drawings
  • Section drawings
  • Construction details
4

Review & Delivery

Final review and quality assurance ensure all drawings meet project requirements and building codes. We deliver complete drawing sets ready for permitting and construction, with ongoing support throughout the project.

Quality Assurance

  • Technical review
  • Code compliance check
  • Drawing coordination
  • Final delivery

Ready to Start Your Project?

Contact us today to discuss your Structural Drawing needs and discover how Skyhooks can transform your vision into reality through exceptional design and technical excellence.

Structural Plan PDF Viewer

Our Structural Plan

Explore the strength and precision behind our structural drawing projects.

Horizontal Beam

View Horizontal Beam Details

Vertical Beam

View Vertical Beam Details

Layout Plan

View Layout Plan

Basement Roof

View Basement Roof Details

Column Layout

View Column Layout

Footing Layout

View Footing Layout

Slab Reinforcement

View Slab Reinforcement

Structural Details

View Structural Details

Tie Beam

View Tie Beam Details

Tie Beam Layout

View Tie Beam Layout